有限会社 東山電気 | サイトマップ | 個人情報 | HOME |
○自家用高圧受電設備工事
○一般電気設備工事・設計施工
○自家用電気工作物保守点検
○ルモマ(地震・火災対策器具)
○太陽光発電システム
○エコオール電化商品
○自動材料供給クレーンシステム
会社概要
お問い合せ
ホーム


自動材料供給クレーン装置は特に人件費の削減に大きく寄与し、製品品質の安定化、材料投入のデータ管理ができます。

自動秤量装置で材料投入量を管理

計量モニターで材料投入量を設定

モニター画面でクレーンの動作設定

前後工程を含めたトータルサポート

1.
リフマグ投下位置を分配してヤード全体から材料を回収
2.
自動秤量
磁力調節して材料投入量調達
3.
材料投下位置を分配
エリアセンサーを設置し安全の確保

4.
電気炉への材料投入装置も提案可能

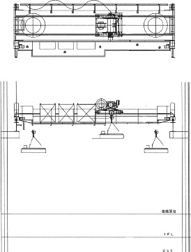
仕様(サンプル)

・定格荷重 4.8t(他に2.8t、10t仕様有)
・スパン 5.00m
・全長  5.290m
・揚程  10.206m
・ホイスト巻上
     1.3〜12.0m/min-10.8kW
・ホイスト横行
     25m/min-0.36kW×2(TH5-28)
・走行  25m/min-0.84kW×2(TH5-75)
・横行給電 絶縁トロリー
・走行レール
     30kg/mレール又は、22kg/mレール
・塗装  ご指定色
・備考  巻上インバータ制御
     リフマグ付き(5min停電補償付きも有)
     自動軽量装置 軽量精度1〜4%

     サイクルタイム20〜40min/バッチ


製作/有限会社 東山電気

お問い合わせ・お申し込みは

有限会社 東山電気
岐阜本社/
〒501-3107 岐阜県岐阜市加野6丁目37番30号 TEL: (058)243-1074 FAX: (058)241-8485

このサイトの全ての画像、文書の無断転載を禁じます。
Copyright(C)2009 Higashiyama denki - inc. All right reserve.